Ihr Spezialist für Wohnimmobilien in München und im südöstlichen Landkreis

- Bestlage Neubiberg - Schöne DHH in absolut ruhiger Anliegerstraße und doch zentral

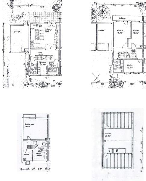
Klicken Sie auf das große Bild, um es zu vergrößern.

Objektbeschreibung

Die gut geschnittene und sehr gepflegte Doppelhaushälfte wurde im Jahr 1969 errichtet. Sie befindet sich in einer absolut ruhigen Anliegerstraße in einer bevorzugten Lage Neubibergs. Der herrliche, große Garten ist ebenso wie der Balkon im 1. Obergeschoss nach Süden ausgerichtet.

Ausstattung

Die attraktive Doppelhaushälfte bietet viel Platz für eine ganze Familie.
Der Eingangsbereich sowie das großzügige Wohnzimmer (fast 30 m²) wurden mit edlem Parkettboden ausgestattet. In den Wohnräumen im 1. OG sowie im voll ausgebauten und hellen Studio (25,30 m²) wurde Teppichboden verlegt.
Das gepflegte Badezimmer hat ebenso wie das Gäste-WC ein Fenster und wurde hell und freundlich gefliest.
Zusätzlich verfügt das Haus über einen ausgebauten Hobbyraum mit Heizkörper (fast 30 m², nicht als Wohnfläche angerechnet) im Kellergeschoss.

Lagebeschreibung

Die Doppelhaushälfte liegt absolut ruhig und in grüner Umgebung, aber dennoch zentral. Hier ist ein angenehmes Wohnen in grüner Umgebung bei gleichzeitig hervorragender Infrastruktur möglich.
Die Haltestelle der S-Bahn (S 7) ist nur ca. 5 Gehminuten entfernt. Die Fahrzeit in die Münchner Innenstadt (Marienplatz) beträgt 20 Minuten.
Das Zentrum Neubibergs mit seinen vielfältigen Einkaufsmöglichkeiten (z.B. Tengelmann, REWE, Vinzenz Murr, Bäcker, Drogeriemarkt, Friseure) sowie Kindergärten, Schulen (Grundschule, Realschule und Gymnasium) und andere Gemeindeeinrichtungen sind ebenfalls problemlos in wenigen Gehminuten zu erreichen.

Sonstiges

Die Garage befindet sich direkt neben dem Hauseingang, was das Be- und Entladen des Autos sehr erleichtert.

Die Heizungsanlage wurde im Jahr 2002 komplett erneuert.