Ihr Spezialist für Wohnimmobilien in München und im südöstlichen Landkreis

- Schönstes Waldperlach - Neuwertiges Reiheneckhaus mit traumhaftem Garten in absolut ruhiger Lage

Klicken Sie auf das große Bild, um es zu vergrößern.

Objektbeschreibung

Bei der Gestaltung dieses großzügigen Reiheneckhauses (Wohnfläche ca. 160 m², Wohn-/Nutzfläche ca. 208 m² ! ) ist es sehr gut gelungen, moderne Architektur und Gemütlichkeit zu einem harmonischen Ganzen zu vereinen.
Die Raumnutzung/-aufteilung des Hauses ist geradezu ideal. Die großzügigen Gauben im Dachgeschoß ermöglichen attraktive Wohnräume. Die gehobene, hochwertige Ausstattung ist auch in Details durchdacht und professionell umgesetzt.
Die gemütliche Terrasse in Süd- und Ost-Lage mit Blick in den traumhaft angelegten Garten lädt zum Verweilen ein. Der Garten mit seinem idyllischen Teich wurde durch einen Landschaftsarchitekten geplant. Sogar die Einzelgarage fügt sich harmonisch in das Gesamtbild ein.

Ausstattung

Das absolut gepflegte Reiheneckhaus bietet seinen Bewohnern angenehmes Wohnen mit viel Komfort. Die Gestaltung des Wohn-/ Essbereichs mit attraktivem Essplatz im Erker ist hervorragend gelungen. Die großzügige Terrasse (ca. 17 m²) ist direkt vom Wohnzimmer aus zugänglich. Sie wurde mit einem edlen Natursteinbelag versehen. Im Erdgeschoss befindet sich außerdem die hochwertige Einbauküche.
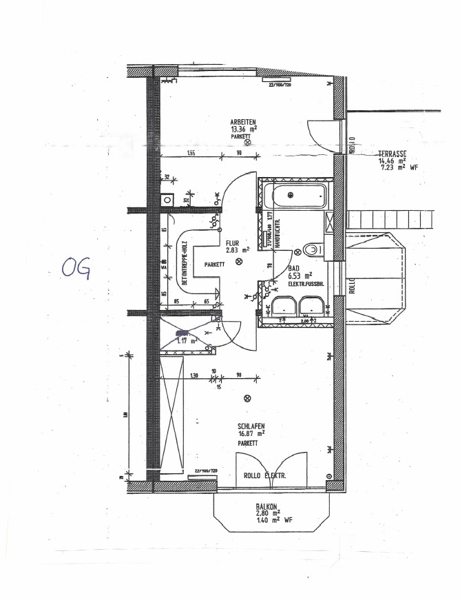
Über eine gut begehbare Holztreppe gelangen Sie in das Obergeschoss. Hier befinden sich ein großes Schlafzimmer mit Südbalkon und ein Kinderzimmer mit Dachterrasse auf der Garage. Das Badezimmer (mit Fenster) hat eine Wanne und wurde zusätzlich mit einer Fußbodenheizung ausgestattet.
Im Dachgeschoss befinden sich zwei weitere Schlafräume mit großzügigen Gauben sowie ein Tageslichtbad mit Dusche.
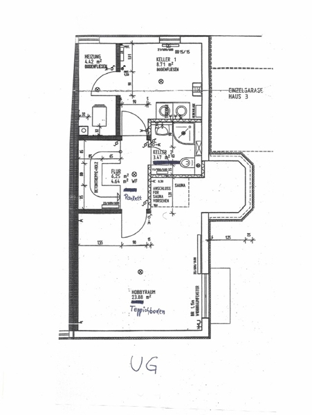
Im Kellergeschoss finden Sie einen ausgebauten Hobbyraum, ein Duschbad und die Waschküche.
Die hohe Qualität des Objekts spiegelt sich sowohl in den verwendeten Materialien als auch bei der technischen Ausstattung wieder.
Alle Fenster im Erdgeschoss (außer den Fenstern im Erker) und das Schlafzimmer im Obergeschoss haben elektrische Rolläden. Der Erker wurde mit einer neuen elektrischen Markise versehen. Die Wohnräume wurden mit edlem Parkett ausgestattet; lediglich der Hobbyraum wurde mit Teppichboden ausgelegt. Die Bäder wurden hell und freundlich gefliest. Auch die Küche hat einen Fliesenboden.
In jedem Stockwerk sind Anschlüsse für Internet und Telefon vorhanden.

Lagebeschreibung

Dieses exklusive, neuwertige Reiheneckhaus (Baujahr 2002) befindet sich in absolut ruhiger Wohnlage des Münchner Stadtteils Waldperlach.
Waldperlach liegt im Südosten Münchens und zählt zu den gehobenen Wohngegenden im Raum München. Das Umfeld ist von schönen Villen, Einfamilien- u. kleinen Mehrfamilienhäusern geprägt. In der näheren Umgebung sind Einkaufsmöglichkeiten für den täglichen Bedarf sowie Arztpraxen etc. zu finden.
Auch Schulen und Kindertagesstätten sind nicht weit entfernt.
S- und U-Bahn-Anschlüsse sind durch Buslinien gut zu erreichen. Die Bushaltestellen sind in der Nähe.

Sonstiges

Die Einzelgarage befindet sich unmittelbar am Haus.
Die Beheizung des Hauses erfolgt über eine Gas-Brennwerttherme. Der Energieausweis kann jederzeit eingesehen werden.
Hinweis: Im Erdgeschoss ist kein Gäste-WC vorhanden (ein WC gibt es ansonsten in jedem anderen Stockwerk). Entsprechende Anschlüsse sind im Erdgeschoss aber vorhanden, so dass ein Gäste-WC im Erdgeschoss jederzeit nachgerüstet werden kann.