Ihr Spezialist für Wohnimmobilien in München und im südöstlichen Landkreis

Sehr schöne, wertige DHH mit durchdachtem Grundriss in Grafing - gut vermietet -

Klicken Sie auf das große Bild, um es zu vergrößern.

Objektbeschreibung

Diese schöne DHH ist nach Süd/West ausgerichtet und ohne direktes Vis à Vis. Sie befindet sich am Ende einer kleinen Sackgasse, die den Zugang zu den lediglich 6 Doppelhäusern dieses gepflegten Ensembles bildet.
Der schön angelegte Garten ist gut eingewachsen und hat u. a. einen Apfel- u. einen Birnbaum. Das Gartenhaus hat den Grundriss eines Pavillons, kann viele Gerätschaften aufnehmen oder zum Aufenthalt mit Sitzgelegenheit genutzt werden.
Die Terrasse wurde vergrößert und lädt zum verweilen ein. Auch ein Ausbau mit Wintergarten wäre hier denkbar.

Ausstattung

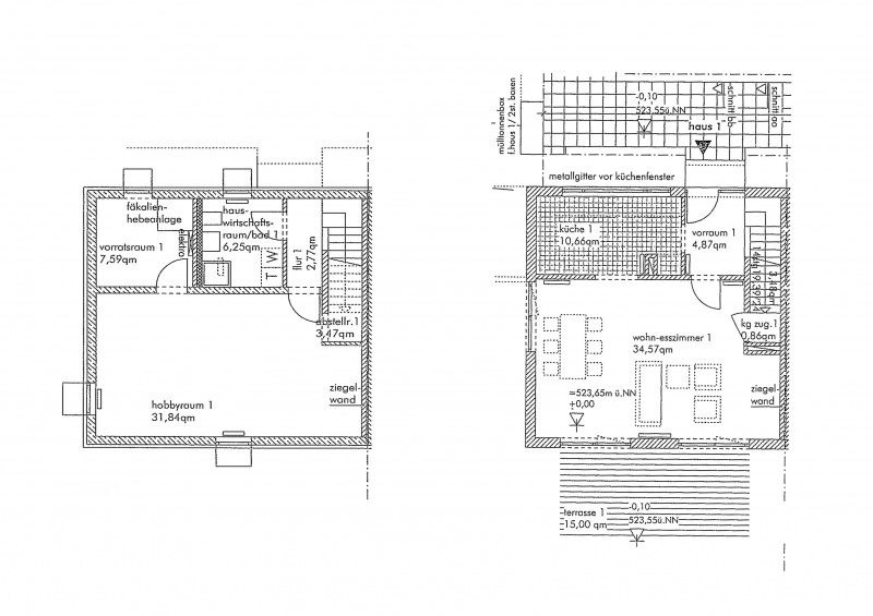
Das ansprechende, gepflegte Haus ist in massiver Ziegelbauweise (Außenwände 30 cm wärmedämmendes Zielgelmauerwerk, Innenwände Hohllochziegel) erstellt. Man betritt das Haus über die einladende Diele. Hier wurde wie im gesamten EG, dem Flur im OG sowie den beiden Bädern in den Obergeschossen einheitlich, ein schöner, heller Terracotta Boden in großformatigen Fliesen verlegt. Das große Wohn-/ Esszimmer ist durch die drei großen bodentiefen Doppelflügeltürelemente (mit Außenrolläden) sehr hell. Die Küche ist halboffen im Landhausstil gestaltet und verfügt über einen hochwertigen Gas-/Elektro-Herd.
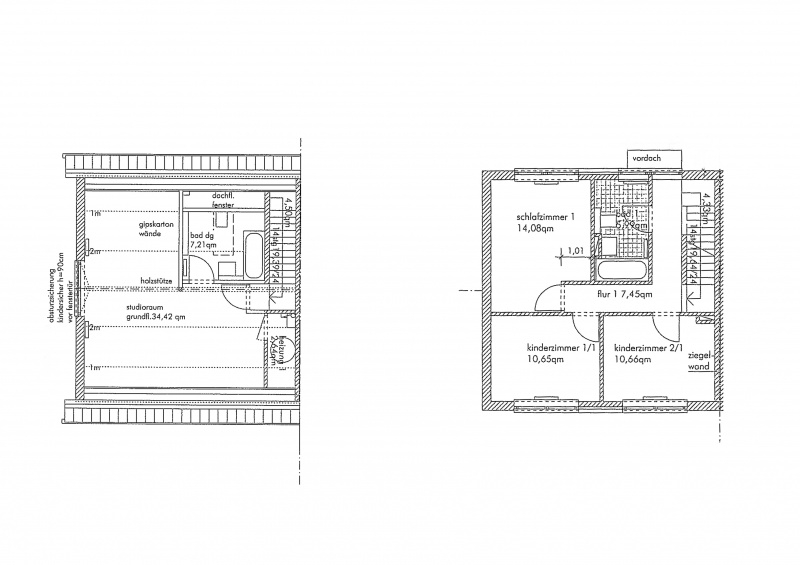
Über die schöne Buchentreppe erreicht man das OG. Neben dem Badezimmer (Wandfliesen in weiß) mit Fenster, Handtuchheizkörper und Badewanne befinden sich auf dieser Ebene noch 3 schöne Zimmer. Diese sind mit hellem Laminat-Boden ausgestattet und Dank der großen Doppelflügel-Fenster (mit Außenrolläden) sehr hell und freundlich. Durch den guten Grundriss wirken die beiden kleineren Räume (knapp 11 m²) nicht nur größer, sondern lassen sich auch gut möblieren. Das wunderschöne, große Studio im DG ist ebenfalls mit Laminat-Boden belegt. An der Giebelseite ist ein bodentiefes Fensterelement (Doppelflügel, kippbar), das für viel Licht sorgt. Auch diese Ebene verfügt über ein schönes, tageslichthelles Bad (Wandfliesen in weiß) mit Badewanne und Dachflächenfenster.
Sämtliche Innentüren im EG, OG u. DG sind passend zur Treppe in hellem Buchenholz gehalten und mit Edelstahl-Drückergarnituren ausgestattet. Zur wertigen Ausstattung gehören auch die isolierverglasten (Schall- u. Wärmeschutz) weißen Kunststofffenster. Diese verfügen teilweise über eine Schalldämm-Lüftungsautomatik (Lüftung ohne dass das Fenster geöffnet werden muß).
Im KG befindet sich das praktische Duschbad (Wand- u. Bodenfliesen hier weiß) in dem auch (auf einem Sockel) die Waschmaschine und ein Trockner ihren Platz finden.
Der Hobbyraum wurde, abweichend vom beigefügten Grundriss, mit Leichtbauwänden in einen Stauraum und einen Raum, der als Büro genutzt wurde, umgestaltet. Er ist mit Teppichboden belegt. In einem weiteren Kellerraum befindet sich Haustechnik wie Stromanschluss/ -verteilung, Medienversorgung/ -verteilung als auch die Hebeanlage (wg Bad i. KG).

Lagebeschreibung

Die Stadt Grafing (ca. 13.000 Einwohner, ca. 32 km südöstlich von München) bietet eine komplette Infrastruktur, die keine Wünsche offen lässt. Selbstverständlich sind hier neben der Versorgung des täglichen Bedarfs, der Sicherstelllung der ärztlichen Versorgung ein umfangreiches Angebot an Kindergärten, Grund- u. Realschule als auch Gymnasium sowie Kultur- und Freizeitangebote (u.a. Schwimmbad, Eislauf, Kino). Das herrliche Umland bietet hervorragende Erholungs- und Ausflugsmöglichkeiten.
Diese attraktive Doppelhaushälfte liegt in begehrter, grüner Ortsrandlage und dennoch erreicht man beispielsweise den S-Bahnhof Grafing-Stadt in knapp 10 Min. zu Fuß. Grafing Bahnhof in 2 Autominuten (großer P+R) oder bequem mit dem Rad. In gut 30 Minuten ist man in München oder aber auch in Rosenheim.

Sonstiges

Die Heizungsanlage (hochwertiger Gas-Brennwert-Heizkessel mit 200 Ltr. Warmwasserspeicher) befindet sich in einem kleinen Raum im DG. Auch eine Vorrüstung (Leerrohre) für eine evtl. spätere Installation einer Solaranlage ist vorhanden.
Der Energieausweis (Bedarfsausweis) liegt vor, demnach beträgt der Endenergiebedarf für dieses Gebäude 90,90 kWh(m² a). Sehr positiv ist auch, dass das Gebäude die aktuell nach EnEV für einen Neubau gültigen Anforderungen erfüllt.
Das Haus ist mit einer Sateliten-TV-Anlage ausgerüstet. Jedes Zimmer verfügt über Fernsehanschluss. Im kompletten Haus wurden LAN-Kabel (Ethernet) verlegt. Auch hier verfügt jedes Zimmer über einen Anschluss.
Zum Haus gehört eine Einzelgarage u. ein Stellplatz.
Das Haus ist gut mit unbefristetem Vertrag vermietet. Die Rendite incl. aller Kaufnebenkosten beträgt ca. 3,23 %.