Ihr Spezialist für Wohnimmobilien in München und im südöstlichen Landkreis

- Ruhige Top-Lage, S-Bahn-Nähe - Neuwertiges Reihenhaus mit viel Platz

Klicken Sie auf das große Bild, um es zu vergrößern.

Objektbeschreibung

Bei der Gestaltung dieses großzügigen Reihenhauses (Wohnfläche ca. 164 m², Wohn-/Nutzfläche ca. 252 m² !) ist es sehr gut gelungen, moderne Architektur und Gemütlichkeit zu einem harmonischen Ganzen zu vereinen. Sogar die Einzelgarage fügt sich perfekt in das Gesamtbild ein.
Die Raumnutzung/-aufteilung des Hauses ist geradezu ideal. Die gehobene, hochwertige Ausstattung ist auch im Detail durchdacht und professionell umgesetzt.
Die große Terrasse in sonniger Süd-Lage lädt zum Verweilen ein.

Ausstattung

Das neuwertige (Baujahr 2003) und gut geschnittene Reihenhaus bietet sehr viel Platz für seine Bewohner.
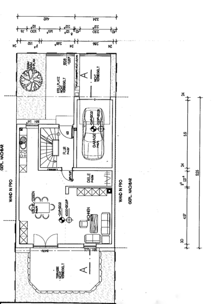
Die Gestaltung des Wohn-/ Essbereichs (fast 34 m²!) ist hervorragend gelungen. Der schöne Kachelofen trägt im Winter zu einer heimeligen Atmosphäre bei. Der Boden im Wohn-/ Essbereich sowie im Küchenbereich (über 8 m²) wurde mit attraktiven Terracotta-Fliesen versehen. Der kleine, eingewachsene Garten mit seiner großzügigen Süd-Terrasse (über 21 m²) ist direkt vom Wohnzimmer aus zugänglich.
Eine schöne und gepflegte Treppe mit massiven Holzstufen aus Buche führt Sie ins Obergeschoss. Der Flur am Treppenaufgang wirkt mit seinem schönen Marmorboden besonders edel.
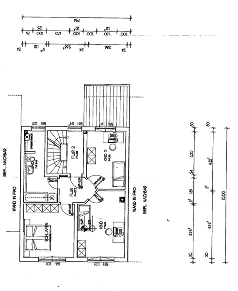
Im Obergeschoss befinden sich neben einem weiteren Flur das Elternschlafzimmer, zwei schöne Kinderzimmer sowie das Bad. Dieser Flur und die Wohnräume im Obergeschoss wurden mit einem besonders edlen Echtholz-Parkett ausgestattet. Die wunderschönen, dazu passenden Holztüren vervollständigen das gemütliche Ambiente.
Das gepflegte, modern geflieste Badezimmer (mit Fenster) wurde mit einer Badewanne ausgestattet und hat einen Waschmaschinenanschluss.
Im voll ausgebauten Dachgeschoss befinden sich ein geräumiges Studio (ca. 24 m² echte Wohnfläche) mit Küchenanschlüssen, ein Gästezimmer und ein schönes Wannenbad, ebenso wie das Bad im Obergeschoss mit Fenster und mit Waschmaschinenanschluss. Das Bad im Dachgeschoss hat hübsche beige Wandfliesen, eine terrakottafarbene Bordüre und dazu passende Bodenfliesen. Im Studio und im Flur wurde das schöne Echtholz-Parkett verlegt; das Gästezimmer bekam einen optisch ebenso sehr ansprechenden dunklen Laminatboden.
Das Dachgeschoss kann durch seine Komplettausstattung wunderbar als eigener Wohnbereich (z.B. für Heranwachsende oder für die Großeltern) genutzt werden.
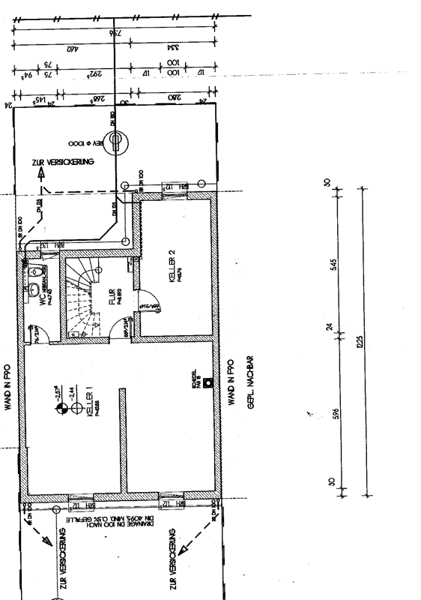
Das Haus (einschließlich Garage) ist voll unterkellert, so dass im Kellergeschoss eine zusätzliche Nutzfläche von ca. 67 m² zur Verfügung steht. Im Keller gibt es kein WC; allerdings sind bereits die Wasseranschlüsse vorhanden, so dass hier eine Toilette und ein Waschbecken jederzeit nachgerüstet werden können.

Lagebeschreibung

Das attraktive Reihenhaus liegt verkehrsgünstig und gleichzeitig sehr ruhig in der grünen Vorstadtgemeinde Feldkirchen im Münchner Osten.
Den S-Bahnhof erreicht man zu Fuß in ca. 10 Minuten. Die Fahrzeit der S-Bahn (S2) bis zum Münchner Marienplatz beträgt weniger als 20 Minuten. Ideal ist auch die Busverbindung (Bushaltestelle ca. 3 Gehminuten vom Haus entfernt) zu den U-Bahn-Stationen Messestadt West bzw. Messestadt Ost (U2).
Die Entfernung zum Zentrum Münchens beträgt nur ca. 15 Kilometer. Das Autobahnkreuz München Ost (A94/ A99) mit Anschluß in alle Richtungen ist in wenigen Minuten erreichbar.
Feldkirchen bietet die komplette Infrastruktur einer gewachsenen Gemeinde mit Kinderkrippe, Kindergärten, Grundschule, Ärzten, Apotheke, Restaurants etc. und allen Einkaufsmöglichkeiten des täglichen Bedarfs. Der nächste Supermarkt ist bequem fußläufig erreichbar. Aber auch die "Riem Arkaden" sind nicht fern.
Zur Freizeitgestaltung und Erholung gibt es unter anderem Spiel-, Sportplätze, das nahe BUGA-Gelände und den "Heimstettener See".

Sonstiges

Die Beheizung des Hauses erfolgt über eine Gas-Brennwerttherme. Ein Anschluss an die Geothermie, die bereits in unmittelbarer Nachbarschaft verlegt wurde, ist möglich. Der Energieausweis (Verbrauchsausweis) liegt vor. Der Endenergieverbrauch beträgt 85,90 kWh/(m²a).
Die geräumige Einzelgarage (Kaufpreis 18.000,-€) und der Außenstellplatz (rechts vom Garagen-Vorplatz, Kaufpreis 8.000,- €) befinden sich unmittelbar am Haus.
Das Haus wird frei nach Absprache.