Ihr Spezialist für Wohnimmobilien in München und im südöstlichen Landkreis

- Bestlage Waldperlach! - Wunderschöne, lichtdurchflutete 3-Zimmer-Dachterrassen-Wohnung

Klicken Sie auf das große Bild, um es zu vergrößern.

Objektbeschreibung

Es handelt sich um eine traumhafte, lichtdurchflutete Dachterrassen-Wohnung. Sie befindet sich in einer bevorzugten Lage von Waldperlach. Das Umfeld ist natürlich gewachsen und geprägt durch eine attraktive Bebauung mit viel Grün.
Die Wohnung befindet sich im 2. und zugleich obersten Stockwerk eines sehr gepflegten 4-Parteien-Hauses, das nur von Eigentümern bewohnt wird. Auf regelmäßige Instandsetzung wird geachtet. So wurden im Jahr 2019 die Fassade und die beiden Garagen gestrichen. Der Garagenvorplatz wurde neu gepflastert.
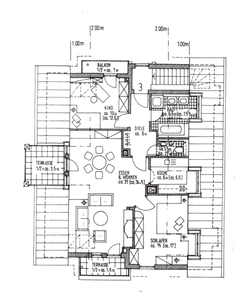
Die Wohnung hat eine ideal nach Westen ausgerichtete Dachterrasse (neu gefliest im Jahr 2014) sowie einen überdachten Südbalkon und einen kleinen, ebenfalls überdachten Nordbalkon. Genießen Sie die wohltuende Ruhe, umgeben von viel Grün!

Ausstattung

Die individuelle und sehr gut geschnittene 3-Zimmer-Dachterrassen-Wohnung ist ideal für ein Paar oder eine kleine Familie. Trotz einiger Schrägen, die die Wohnung besonders gemütlich wirken lassen, stehen genügend Wände mit voller Stehhöhe zur Verfügung, so dass sich für die Möbel sehr gute Stellmöglichkeiten ergeben.
Alle Wohn- und Schlafräume wurden mit einem schönen Parkettboden ausgestattet. Die Böden von Diele und Küche wurden hell und freundlich gefliest. Das Badezimmer und das Gäste-WC wurden mit hellen Wandfliesen (im Bad mit einer hübschen Zierborte) und blauen Bodenfliesen ausgestattet.
Besonders ansprechend ist das lichtdurchflutete Wohn-/Esszimmer (Wfl. ca. 31 m², WNfl. ca. 34,5 m²) mit viel Platz für eine individuelle Möblierung. Vom Wohnzimmer aus gelangen Sie auf die Dachterrasse (Westausrichtung) und auf den Südbalkon.
Auch das Schlafzimmer und das Kinderzimmer mit seinem kleinen Balkon sind hell und freundlich. Im Kinderzimmer befindet sich noch ein sog. Kriechspeicher mit zusätzlichem Stauraum.
Die Küche hat ein großes Fenster.
Das großzügige Tageslichtbad wurde mit Badewanne und Dusche (mit Glas-Duschabtrennung) ausgestattet. Auch das Gäste-WC hat ein Fenster.
Der praktische Einbauschrank in der Diele bietet weiteren Stauraum.

Lagebeschreibung

Die attraktive, gepflegte Dachterrassen-Wohnung (Baujahr 2000) befindet sich in absolut ruhiger Wohnlage des begehrten Münchner Stadtteils Waldperlach. Waldperlach liegt im Südosten Münchens und zählt zu den gehobenen Wohngegenden im Raum München. Das Umfeld ist von schönen Villen, Einfamilien- u. kleinen Mehrfamilienhäusern geprägt und bietet gleichzeitig eine optimale Infrastruktur.
Sämtliche Einkaufsmöglichkeiten des täglichen Bedarfs wie Rewe Supermarkt, Rewe Getränkemarkt, Bäckerei, Apotheken und Ärzte und auch eine Sparkasse befinden sich in unmittelbarer Nähe. Der traditionelle Biergarten "Leiberheim" ist zu Fuß bequem zu erreichen. Restaurants und Cafés befinden sich ebenfalls in der Nähe. Auch Schulen (Grundschule, Realschule, Gymnasium) und Kindertagesstätten sind nicht weit entfernt.
Der nahegelegene Waldtruderinger Forst (ca.10 Gehminuten entfernt) lädt zum Spazierengehen und Joggen ein.
S- und U-Bahn-Anschlüsse sind durch Buslinien gut zu erreichen. Alternativ ist der S-Bahnhof Neubiberg (S 7) in ca. 12 Gehminuten oder noch schneller mit dem Rad erreichbar.
Die Autobahnanbindung über die A99/ A8 ist ebenfalls optimal.

Sonstiges

Die geräumige Duplex-Garage (oben) ist im Kaufpreis bereits enthalten.
Die Gartenmitbenutzung eines separaten Gartenanteils (ca. 60 m²) ist möglich.
Zur Wohnung gehört noch ein gemauertes Kellerabteil mit Fenster und mit Stromanschluss. Außerdem stehen ein Fahrradraum sowie eine Waschküche mit eigenem Anschluss für Waschmaschine und Trockner zur gemeinschaftlichen Nutzung zur Verfügung.
Die monatliche Hausgeldvorauszahlung beträgt z.Zt. 320,- € für die Wohnung inkl. Duplex-Garage.
Ein Energieausweis (Verbrauchsausweis) liegt vor. Der Energieverbrauchskennwert beträgt 130 kWh/(m²a).