Ihr Spezialist für Wohnimmobilien in München und im südöstlichen Landkreis

- Kapitalanlage, ideal in U- und S-Bahn-Nähe! - Gut vermietete, hübsche 2-Zi.-Whg. mit Süd-Loggia

Klicken Sie auf das große Bild, um es zu vergrößern.

Objektbeschreibung

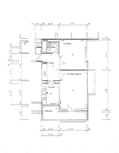
Es handelt sich um eine helle, gut geschnittene 2-Zimmer-Wohnung im 1. Stock einer gepflegten Wohnanlage mit viel Grün im Münchner Stadtteil Feldmoching. Ein Personenaufzug ist vorhanden.
Die schöne Süd-Loggia (über 8 m²) lädt zum Verweilen ein.

Ausstattung

Die Wohnung wurde im Jahr 2014 frisch renoviert. So wurde in sämtlichen Wohnräumen ein neuer Laminatboden verlegt. Die Küche wurde ebenfalls mit einem neuen Laminatboden ausgestattet, der eine spezielle fettabweisende Beschichtung aufweist. Die Einbauküche gehört den Mietern.
Die Türen wurden ebenfalls im Jahr 2014 neu hergerichtet und mit neuen Schlössern versehen. Auch der Sicherungskasten wurde erneuert.
Das gepflegte Badezimmer verfügt über eine vollwertige Badewanne und bietet Platz für eine Waschmaschine. Toilette, Spülkasten, Waschbecken und Wasserhahn wurden hier ebenfalls erneuert.
Die einladende Diele hat einen großen Einbauschrank.
Durch die großen Fensterflächen ist die Wohnung sehr hell und freundlich. Der Schnitt der Wohnung ermöglicht gute Stellmöglichkeiten. Das Wohnzimmer ist ideal nach Süden ausgerichtet. Auch das Schlafzimmer ist hell und freundlich.
Die großzügige Südloggia wurde vor einigen Jahren neu gefliest. Der große Blumenkasten kann schön bepflanzt werden.
Bei dem Tiefgaragen-Stellplatz handelt es sich um einen vollwertigen Stellplatz (kein Duplex).
Zur Wohnung gehört ein kleines Kellerabteil.
Neben der beschriebenen Stellmöglichkeit für die Waschmaschine im Bad stehen auch ein Waschraum mit Waschmaschine und Trockner (Miele, Münzeinwurf) sowie ein Trockenraum zur gemeinschaftlichen Nutzung im Keller zur Verfügung. Ein Fahrradkeller ist ebenfalls vorhanden.

Lagebeschreibung

Die hübsche Wohnung liegt sehr verkehrsgünstig und dennoch ruhig in einer grünen Wohnanlage. Die Infrastruktur lässt keine Wünsche offen. So befinden sich im direkten Umfeld die Einkaufsmöglichkeiten des täglichen Bedarfs wie z.B. Aldi, Rewe, Rossmann, Bäcker usw. Auch das bekannte Einkaufszentrum Mira ist nicht weit entfernt. Die Nahverkehrsanbindung ist perfekt. S-Bahn (S1 zum Flughafen bzw. in die Innenstadt) und U-Bahn (U2) sind zu Fuß in ca. 6-7 Minuten zu erreichen. Die Fahrzeit zum Flughafen beträgt ca. 25 Min.; den Hauptbahnhof erreichen Sie nach ca. 18 Min. Fahrt. Auch die Autobahnanbindung (A99, A92) ist ideal.

Sonstiges

Die Wohnanlage wurde in der Vergangenheit laufend instandgesetzt (kein Renovierungsstau). So wurde die Heizungsanlage im Jahr 2017 komplett erneuert. Im Jahr 2020 wurde die Tiefgaragenrampe komplett saniert. Das Tiefgaragentor muss noch erneuert werden (geplant für 2021).
Der Energieausweis liegt vor, der Endenergieverbrauch liegt bei günstigen 85 kWh/(m²a). Hier sind die niedrigeren Werte seit der Erneuerung der Heizungsanlage noch kaum berücksichtigt, da dieser hinsichtlich der Verbrauchserfassung den Zeitraum seit Juli 2014 umfasst.
Das monatliche Hausgeldvorauszahlung beträgt insgesamt ca. 270,- € (ca. 184,- € + ca. 86,- € für die Rücklage).
Die Wohnung ist gut vermietet an sehr nette Mieter.
Es sind solide Rücklagen vorhanden (ca. 716.600,- €, Stand 31.12.2020).

Liebe Kunden,
bitte haben Sie Verständnis, dass aufgrund der derzeitigen Corona-Lage
- für die gesamte Dauer des Aufenthalts in unseren Objekten das Tragen eines geeigneten Mund-Nasen-Schutzes Pflicht ist und eine Besichtigung nicht möglich ist bei Corona-typischen Symptomen innerhalb der letzten 14 Tage,
- die maximale Personenzahl je Besichtigung auf 2 Personen beschränkt ist.
Wir bedanken uns für Ihre Kooperation.

Zusätzlich zum Kaufpreis für Wohnung und Tiefgarage fällt die Käuferprovision in Höhe von 2,38% (inkl. 19% MwSt.) des beurkundeten Kaufpreises an, verdient und fällig mit Beurkundung des notariellen Kaufvertrages. Der Immobilienmakler hat einen provisionspflichtigen Maklervertrag mit dem Verkäufer in gleicher Höhe abgeschlossen.