Ihr Spezialist für Wohnimmobilien in München und im südöstlichen Landkreis

Traumhafte 3-Zimmer-Gartenwohnung mit großer Südwest-Terrasse

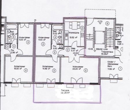
Klicken Sie auf das große Bild, um es zu vergrößern.

Objektbeschreibung

Die helle und neuwertige 3-Zimmer-Wohnung befindet sich in einer kleinen, sehr gepflegten Parkwohnanlage in absolut ruhiger Lage. Die Wohnung wurde im Jahr 2001 in Ziegelbauweise errichtet.

Der ca. 86 m² große Garten wurde von einem Gärtner liebevoll angelegt. Die großzügige Terrasse (ca. 26 m²) besteht aus hochwertigem, witterungsbeständigen Tropenholz und ist nach Südwesten ausgerichtet.
Vor dem Garten befindet sich eine unverbaubare Grünfläche von ca. 3000 m² mit altem Baumbestand.

Die Wohnung und die Tiefgarage sind barrierefrei zu erreichen.

Ausstattung

Alle Wohnräume wurden mit edlem Buchenparkett ausgestattet. Das Badezimmer verfügt über ein Fenster und einen Waschmaschinenanschluss und wurde ebenso wie die großzügige Wohnküche (ca. 12,5 m²) hell und freundlich gefließt. Die schöne Einbauküche mit den hochwertigen Einbaugeräten ist im Kaufpreis enthalten.

Alle Zimmer haben Rolläden; im Wohnzimmer und in der Küche sind diese elektrisch zu bedienen.

Im Garten befindet sich ein kleines Gartenhäuschen. Auf der Terrasse bieten zwei Markisen Schutz vor der Sonne.

Lagebeschreibung

Alle Geschäfte des täglichen Bedarfs sind bequem zu Fuß zu erreichen. Ebenso sind Kindergärten und Schulen in der Nähe. Zur S-Bahn (S6) sind es ca. 10 Gehminuten.
In der unmittelbaren Umgebung gibt es vielfältige Möglichkeiten für Spaziergänge auf den vielen autofreien Wegen. Kinder können hier wunderbar im Grünen spielen.

Sonstiges

Der Tiefgaragenstellplatz ist auch für größere Autos geeignet (z.B. Jeeps).
Zur Wohnung gehört noch ein ca. 7,10 m² großes Kellerabteil mit Fenster sowie Licht- und Stromanschluss.
Außerdem sind ein Trockenraum mit Wäscheleinen sowie ein Fahrradkeller vorhanden.
Das Hausgeld beträgt ca. 244.- € monatlich. Hier ist die Heizung bereits enthalten.