Ihr Spezialist für Wohnimmobilien in München und im südöstlichen Landkreis

Attraktives Reihenhaus in ruhiger Top-Lage

Klicken Sie auf das große Bild, um es zu vergrößern.

Objektbeschreibung

Das gut geschnittene und sehr gepflegte Reihenhaus wurde im Jahr 1989 errichtet. Es befindet sich in einer verkehrsberuhigten Zone. Der sonnige, kleine Garten ist ebenso wie der Balkon im 1. Obergeschoss nach Westen ausgerichtet.

Ausstattung

Das großzügige Reihenmittelhaus verfügt über 5 Zimmer und zusätzlich über einen Hobbyraum im Keller. Der Eingangsbereich sowie Bad, Gäste-WC, Küche und auch der Keller wurden gefliest. Im Wohnbereich wurde Teppichboden verlegt.
Das gepflegte Badezimmer wurde sowohl mit einer Badewanne als auch mit einer Dusche ausgestattet. Die hochwertige Echtholzküche (helles Holz) verfügt über ein Cerankochfeld, Spülmaschine sowie eine Kühl-/ Gefrierkombination. Sie ist erst ca. 3 Jahre alt und im Kaufpreis enthalten.
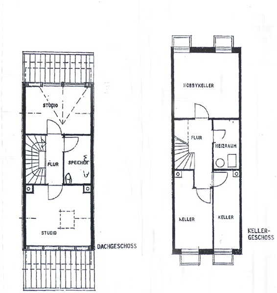
Die beiden großzügigen Kinderzimmer im Dachgeschoss wurden mit einer schönen Holzdecke ausgestattet. Der Abstellraum im Dachgeschoss wurde bereits für eine Nutzung als Badezimmer vorbereitet.
Im Keller befinden sich noch eine Sauna sowie eine Dusche.

Lagebeschreibung

Das Reihenhaus liegt absolut ruhig und in grüner Umgebung, aber dennoch zentral. Die S-Bahn (S 6) sowie die vielfältigen Einkaufsmöglichkeiten (z.B. EDEKA, Tengelmann, Schlecker, Bäcker usw.) befinden sich in unmittelbarer Nähe. Auch Schulen und Kindergärten sind bequem zu Fuß zu erreichen. Voraussichtlich im Jahr 2010 wird es in Höhenkirchen auch ein Gymnasium geben. Bis dahin kann die hervorragende Anbindung per S-Bahn zum Gymnasium Ottobrunn bzw. Gymnasium Neubiberg genutzt werden.

Sonstiges

Bei dem Tiefgaragen-Stellplatz handelt es sich um einen vollwertigen Stellplatz (kein Duplex).
Zum Objekt gehört noch ein Gerätehäuschen.