Ihr Spezialist für Wohnimmobilien in München und im südöstlichen Landkreis

Individuelles, schönes Reihenhaus in angenehm ruhiger Lage, Ottobrunn

Klicken Sie auf das große Bild, um es zu vergrößern.

Objektbeschreibung

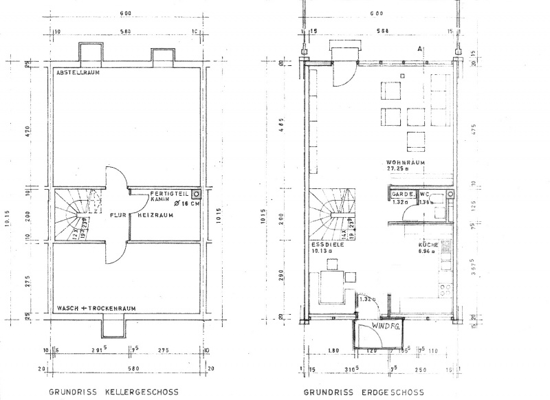
Das in Massivbauweise erstellte, sehr gepflegte Haus verfügt über eine Hausbreite von 6 Metern und wurde 1998 aufwändig, unter Verwendung sehr hochwertiger Materialien, saniert. Neben den Wasser- Stromleitungen, der Heizanlage wurden auch die Fenster und Türen erneuert sowie sämtliche Böden neu verlegt. Im schönen, eingewachsenen Westgarten befindet sich ein ebenfalls hochwertiges Gartenhaus, das zahlreiche Gerätschaften und Fahrräder aufnehmen kann. Über das Gartentürchen erreicht man eine kleine Grünanlage mit Sandkasten.

Ausstattung

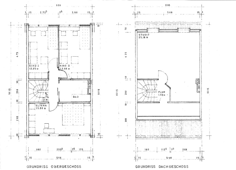
Das geräumige Reihenhaus ist individuell. So ist das Erdgeschoss mit Küche, Eingangs- und Wohnbereich komplett offen gehalten. Den Gestaltungsmöglichkeiten bei der Einrichtung von modern bis gemütlich sind hier keine Grenzen gesetzt. Durch die großen Fenster ist diese Ebene sehr freundlich und hell. Für wohnliche Atmosphäre sorgen die edlen Harthölzer der Bodenbeläge. So sind das EG, die Wohnräume im OG sowie der Hobbyraum und Heizungsraum mit Doussie (afr. Hartholz), das große Studio im DG mit edlem Kirschholz-Parkett belegt. Die Trittstufen der offenen Treppe sind in Mahagoni ausgeführt.
Die schönen Wohnräume im OG sind durch die großen Fenster hell und freundlich sowie dank der Grundrisse gut zu möblieren. Sämtliche Fenster im EG und OG sind mit Aussenrolläden ausgestattet, die Fensterbänke sind aus wertigem Granit.
Das Badezimmer ist großformatig in weiß, mit dunkelblauer Borte gefliest. Der Boden und der Doppelwaschtisch (mit Vollholzunterbau) sind mit edlem, dunklen Granit belegt. Das Badezimmer verfügt über eine große Badewanne (Acryl) sowie eine Dusche. Im schönen Gäste-WC (mit Spiegelspiel) sind ebenso wie auch im Bad eine Beleuchtung mit Spots installiert.
Die herrliche West-Terrasse (belegt mit Bankirai) lädt zum verweilen ein und dient bei entsprechendem Wetter als erweitertes Wohnzimmer. Der große Hobbyraum bietet vielfältige Nutzungsmöglichkeiten und verfügt über viel Stauraum in Einbauschränken. Der Waschraum ist sehr geräumig und in weiß gefliest. Zur zentralen Warmwasser- und Heizungsversorgung ist im Keller ein mit Gas betriebener Brennwertkessel installiert. Der Heizungsraum ist darüber hinaus nutzbar.

Lagebeschreibung

Das schöne Reihenhaus liegt am Ende einer Sackgasse in einer ruhigen, dennoch kinderfreundlichen Wohngegend (komplettes Viertel Zone 30) und ist Ost/West ausgerichtet. Ottobrunn verfügt über eine hervorragende Infrasturktur mit Kindergärten, Schulen, ärztlicher Versorgung, Schwimmbad, Eislaufstadion, kompletten Einkaufsmöglichkeiten, Restaurants und guter Verkehrsanbindung.

Sonstiges

Im DG gibt es einen praktischen Stauraum (Kriechspeicher).
In der Küche ist ein Gasanschluss vorhanden, der den Betrieb eines Gasherdes ermöglicht.
In der angegebenen Nebenkostenabschlagszahlung (EUR 105) sind enthalten Frisch- u. Abwasser, Grundabgabe (Steuer), Gebäudeversicherung und Kaminkehrer sowie die jährliche Heizungswartung. Für die Gas-, Strom-, und Medienversorgung sucht sich der Mieter seine bevorzugten Anbieter selbst aus und rechnet mit diesen jeweils direkt ab. Dies gilt auch für die Müllentsorgung, die mit der Gemeinde zu regeln ist.
Das Haus ist frisch gestrichen.