Ihr Spezialist für Wohnimmobilien in München und im südöstlichen Landkreis

- Bestlage Neubiberg - Schickes, top-renoviertes Reihenhaus

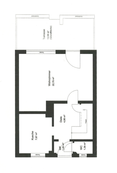
Klicken Sie auf das große Bild, um es zu vergrößern.

Objektbeschreibung

Das gut geschnittene und sehr gepflegte Haus wurde unter Verwendung hochwertiger Materialien laufend saniert, zuletzt Badezimmer und Gäste-WC im Jahr 2010. Neben der Heizanlage (Markenfabrikat Buderus, neu 2004) und dem Dach (neu 2003) wurden auch die Fenster und Türen erneuert sowie sämtliche Böden neu verlegt. Im sonnigen Westgarten befindet sich ein hübsches Gartenhaus, das zahlreiche Gerätschaften aufnehmen kann. Die schöne, überdachte Terrasse (über 14 m²) lädt zum Verweilen ein. Zum Schutz vor der Sonne gibt es eine elektrische Markise.

Ausstattung

Das attraktive Reihenmittelhaus verfügt über 3,5 Zimmer und zusätzlich über einen Hobbyraum im Keller (nicht in der Wohnfläche mit angerechnet).
Der Wohnbereich im Erdgeschoss und im 1. Obergeschoss wurde im Jahr 2004 mit edlem Parkett in Eiche natur ausgestattet. Das Wohnzimmer ist durch die großen Fenster hell und freundlich und hat elektrische Rolläden.
Die moderne Einbauküche (neu 2009) lässt keine Wünsche offen. Sie verfügt über einen Backofen, Herd mit Cerankochfeld, eine Kühl- Gefrierkombination, eine Spülmaschine und eine Mikrowelle.
Der Windfang, die Diele, das Gäste-WC, die Küche sowie das Bad im 1. OG wurden mit hellen, freundlichen Fliesen versehen. Die schöne Holztreppe wurde 2004 saniert.
Das Badezimmer im 1. OG wurde mit einer Badewanne, einer Dusche, Spiegelschrank und einem schönen Badezimmerschrank ausgestattet. Im gleichen Stockwerk befinden sich neben Schlafzimmer und Arbeitszimmer/ Kinderzimmer noch zwei praktische Abstellräume.
Im voll ausgebauten Dachgeschoss befindet sich neben dem mit Parkettboden ausgelegten Studio (über 16 m², mit zwei Gauben) auch noch ein beige gefliestes Duschbad mit Fenster.

Lagebeschreibung

Das Reihenhaus befindet sich in einer ruhigen, aber dennoch zentralen Lage in Neubiberg. Es liegt direkt beim idyllischen Umweltgarten und nahe dem herrlichen Landschaftspark mit seinen vielen Fuß- und Radwegen.
Das Zentrum Neubibergs mit seinen vielfältigen Einkaufsmöglichkeiten (Supermarkt, Metzger, Bäcker, Fotogeschäft, Postagentur usw.) ist bequem in wenigen Gehminuten zu erreichen. Zur S-Bahn (S7) sind es zu Fuß ca. 5-6 Minuten. Die Fahrzeit direkt in die Innenstadt (Marienplatz) beträgt 20 Minuten. Kindergärten, alle Schulen und andere Gemeindeeinrichtungen sind ebenfalls schnell zu erreichen.

Sonstiges

In der angegebenen Nebenkostenabschlagszahlung (70,- €) sind Grundsteuer, Gebäude- und Brandversicherung, Versicherung für Elementarschaden, Vermieterhaftpflicht und Kaminkehrer sowie die jährliche Heizungswartung enthalten. Für die Gas-, Strom-, Wasser- und Abwasser- sowie Medienversorgung sucht sich der Mieter seine bevorzugten Anbieter selbst aus und rechnet mit diesen jeweils direkt ab. Dies gilt auch für die Müllentsorgung, die mit der Gemeinde zu regeln ist.
Beim Garagenstellplatz handelt es sich um eine Einzelgarage mit elektrischem Garagentor.