Ihr Spezialist für Wohnimmobilien in München und im südöstlichen Landkreis

Attraktiv, hochwertig und großzügig, 3-Zimmer-Wohnung in Sauerlach

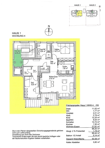
Klicken Sie auf das große Bild, um es zu vergrößern.

Objektbeschreibung

Die qualitativ hochwertige Neubau-Wohnung (Nr. 4, Haus 1, Objekt Nr. AZ429, Erstbezug!) wird angeboten und ist ideal für einen Haushalt mit 2-3 Personen. Die attraktive Wohnung befindet sich in einem von zwei architektonisch sehr ansprechenden 6-Parteien-Häusern. Alle vier Ebenen der Häuser sind schwellenfrei von der Tiefgarage, bis zum Dachgeschoss mit Personenaufzug erreichbar.
Die grundsolide Ziegelbauweise (36,5 cm Poroton-Ziegel), meisterhafte Ausführung der Gewerke, die hochwertige Ausstattungsqualität sowie der durchdachte Grundriss ermöglichen angenehmes, entspanntes Wohnen auf höchstem Niveau.
Der große Süd-Balkon bietet viel Platz und lädt zum Verweilen ein.
Es kann von einer Bezugsfertigkeit zum 01.09.2019 ausgegangen werden.
Da die Endabnahme noch nicht erfolgt ist, liegt ein „vorläufiger“ Energieausweis (Bedarfsausweis) vor.

Ausstattung

Der schöne Eingangsbereich und das Treppenhaus des Objekts sind mit hellem Naturstein (Jura-Marmor) belegt und verfügen über guten Schallschutz.
Alle Wohnräume werden mit edlem Parkett in Eiche massiv, geölt ausgestattet. In der Küche und im Bad werden großformatige Bodenfliesen (Feinsteinzeug) verlegt. Diese sind in anthrazit gehalten und bringen im Bad einen tollen Kontrast zu den weißen Wandfliesen und Sanitärobjekten. Das moderne, luxuriöse Badezimmer ist mit 8,54 m² großzügig und selbstverständlich tageshell. Es ist mit Doppelwaschbecken sowie Badewanne und großer, bodenebener Dusche ausgestattet. Auch ein Waschmaschinenanschluss ist vorhanden der alternativ zur Aufstellmöglichkeit im Waschkeller genutzt werden kann. Natürlich gibt es auch ein separates Gäste-WC.
Alle Räume werden einzeln regelbar mit Fußbodenheizung beheizt. Im Bad gibt es zusätzlich einen Handtuchtrockner mit Elektroanschluss. Die zentrale Wärmeerzeugung erfolgt mittels einer Gas-Brennwert-Anlage, die durch thermische Sonnenkollektoren unterstützt ist.
Die Wohnung ist mit sehr hochwertigen Holz-Alu-Fenstern ausgestattet. Die Fenster verfügen über elektrische Außenrollläden.
Die edle Ausstattung wird durch hochwertige weiße Holztüren mit Edelstahlgarnituren abgerundet.
Selbstverständlich sind in allen Räumen ausreichend Steckdosen als auch Anschlussdosen zur Medienversorgung vorhanden.
Der architektonisch durchdacht und geschickt geplante Grundriss ermöglicht sehr gute, Einrichtungsmöglichkeiten. Sehr geschickt ist die Schiebe-Türe zur Küche. Hervorzuheben ist die bodentiefe Fensterfront mit einem breiten Schiebe-Element zum einladenden Südbalkon, im großen, hellen Wohnzimmer. Praktisch der Abstellraum.

Lagebeschreibung

Leben im Süden Münchens zwischen der „Weltstadt mit Herz“ und den Alpen. Hier in Sauerlach stimmt die Infrastruktur und der Freizeitwert.
Mit dem Kfz erreicht man in ca. 30 Minuten die Münchner Innenstadt, etwa ebenso lange benötigt man in die Berge oder z. B. zum Starnberger See. Auch der Autobahnanschluss zur A 995 und A8 ist schnell erreicht und man hat über das nahe Autobahnkreuz München-Süd Zugang zu allen Richtungen.
Diese neuen Architektenhäuser liegen auf einem schönen großen Grundstück im westlichen Ortsgebiet von Sauerlach. In gut 10 Minuten erreicht man zu Fuß die S-Bahn oder man nimmt bequem den Bus, der fast vor dem Haus hält und in einer Fahrzeit von ca. 4 Minuten den Bahnhof erreicht.
Sauerlach bietet eine sehr gute Infrastruktur mit vielfältigen Einkaufsmöglichkeiten, Restaurants, Arztpraxen, Banken und Dienstleistern. Selbstverständlich gibt es mehrere Kindergärten und auch eine Grundschule ist am Ort. Weiterführende Schulen sind mit der S-Bahn problemlos in den Nachbarorten (z. B. Oberhaching, Taufkirchen oder Holzkirchen) erreichbar.

Sonstiges

Zur Wohnung gehören zwei Außenstellplätze (Nr. 5 u.6) sowie ein Tiefgaragenstellplätze (Nr. 5). Die Tiefgarage bietet ausschließlich vollwertige, geräumige Stellplätze (keine Duplex). Bemerkenswert ist zudem der gute Schnitt der Tiefgarage, der einfaches Rangieren ermöglicht. Selbstverständlich erfolgt die Öffnung des Tiefgaragentors bequem mit Fernbedienung, die Einfahrthöhe beträgt 2 Meter.
Zur Wohnung gehört ein eigenes Kellerabteil (4,73 m²). Im KG gibt es einen Waschraum, in dem Sie an einem separaten Wasser- und Stromanschluss Ihre eigene Waschmaschine und Trockner (als Turm) aufstellen können.
Zur gemeinschaftlichen Nutzung gibt es einen großzügig dimensionierten Raum zur Einstellung von Kinderwägen und Fahrrädern.


Wir bitten Sie bei Ihrer Anfrage um vollständige Kontaktangaben (Anschrift und Telefonnummer).

Weitere Wohnungen finden Sie auf unserer Homepage. Sehen Sie hierzu bitte die Gesamtobjekt-Beschreibung Nr.: QH426 auf unserer Homepage: www.immobilienbuero-raettig.de