Ihr Spezialist für Wohnimmobilien in München und im südöstlichen Landkreis

- Schönes Wohnen in Bestlage Unterhaching - Attraktive 2-Zimmer-DG-Wohnung mit großem Westbalkon

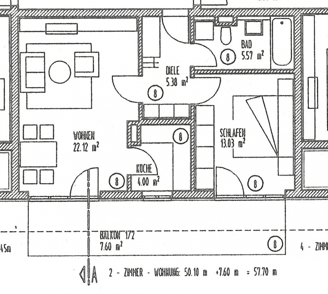
Klicken Sie auf das große Bild, um es zu vergrößern.

Objektbeschreibung

Es handelt sich um eine sehr gepflegte, neuwertige Dachgeschosswohnung (Bj. 2002; ohne Schrägen!), die keine Wünsche offen lässt. Sie liegt im 2. und zugleich obersten OG und ist, wie auch das Kellergeschoss, mit dem vorhandenen Personenaufzug erreichbar.
Ein großzügiger, nach Westen ausgerichteter Balkon (über 15 m²), der von den beiden Wohnräumen aus zugänglich ist, lädt zum Verweilen ein.

Ausstattung

Die geräumige 2-Zimmer-Wohnung (Wohnfläche 57,7m²) besticht durch ihre gute Ausstattung. Sämtliche Fenster sind aus pflegeleichtem, weißen Kunststoff und haben Rolläden. An den Fenstern wurden auf Alurahmen aufgezogene Fliegengitter montiert.
Im Wohnzimmer sowie im Schlafzimmer wurde ein heller Ahornparkettboden verlegt. Die Böden in Diele, Küche und Badezimmer sind mit ansprechenden hellgrau melierten Fliesen ausgestattet.
Das moderne Bad ist deckenhoch gefliest und hat eine Badewanne. Es bietet Stell- und Anschlussmöglichkeit für Waschmaschine und Trockner.
Die kleine, separate Küche hat ein Fenster. Sie verfügt über eine sehr gepflegte Einbauküche mit Herd, Cerankochfeld, Geschirrspüler und Kühlschrank.
Die schöne Wohnung ist gut geschnitten und bietet in sämtlichen Räumen unkomplizierte Möglichkeiten der Möblierung. Durch die großen Fenster sind die Wohnräume sehr freundlich und hell.

Lagebeschreibung

Die ruhige und lichtdurchflutete Wohnung befindet sich in einer sehr guten Lage von Unterhaching. Die Infrastruktur ist hervorragend. So sind alle Einkaufsmöglichkeiten des täglichen Bedarfs wie Tengelmann, Edeka, Aldi, Lidl und Drogeriemärkte sowie Apotheken und Arztpraxen fußläufig erreichbar.
Zur S-Bahn (S 3) sind es nur ca. 5 Gehminuten. Die Fahrzeit in die Münchner Innenstadt (Marienplatz) beträgt nur ca. 18 Minuten.
Unterhaching ist durch den Münchner Autobahnring A 99 und die Salzburger Autobahn (A 8) hervorragend an den überregionalen Straßenverkehr angebunden.
Auch im Hinblick auf die Freizeitgestaltung hat Unterhaching einiges zu bieten. Der Landschaftspark Hachinger Tal, der Ortspark und der Perlacher Forst laden zu ausgiebigen Wanderungen und Radtouren ein. Außerdem stehen die Sportanlagen im Ort und das sehr schöne Unterhachinger Freibad zur Verfügung.

Sonstiges

Bei dem Tiefgaragen-Stellplatz handelt es sich um einen vollwertigen Stellplatz (kein Duplex). Die Garagentoröffnung erfolgt mittels Fernbedienung. Die Tiefgarage ist trockenen Fußes von der Wohnung aus zu erreichen.
Zur Wohnung gehört noch ein schöner Keller mit Stromanschluss. Hier kann z.B. ein Gefrierschrank aufgestellt werden. Außerdem stehen ein Fahrradraum sowie ein Trockenraum zur gemeinschaftlichen Nutzung zur Verfügung.
Ein Energiepass ist vorhanden. Der Endenergieverbrauch beträgt 69,6 kWh/(m²a). Dieser hervorragende Wert weist auf die gute energetische Qualität des Gebäudes hin und wirkt sich positiv auf die Heizkosten aus.