Ihr Spezialist für Wohnimmobilien in München und im südöstlichen Landkreis

3-Zimmer-Wohntraum im Dachgeschoss, Wohn./-Nfl. 96,10 m², in Sauerlach

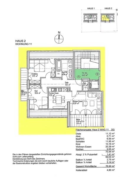
Klicken Sie auf das große Bild, um es zu vergrößern.

Objektbeschreibung

Die attraktive, qualitativ hochwertige Wohnung befindet sich in einem von zwei architektonisch sehr ansprechenden 6-Parteien-Häusern. Alle vier Ebenen der Häuser sind schwellenfrei von der Tiefgarage, bis zum Dachgeschoss mit Personenaufzug erreichbar.
Die grundsolide Ziegelbauweise (36,5 cm Poroton-Ziegel), meisterhafte Ausführung der Gewerke, die hochwertige Ausstattungsqualität sowie der durchdachte Grundriss ermöglichen angenehmes, entspanntes Wohnen auf höchstem Niveau.
Der überdachte Süd-Balkon bietet viel Platz und lädt zum Verweilen ein.

Ausstattung

Der schöne Eingangsbereich und das Treppenhaus des Objekts sind mit hellem Naturstein (Jura-Marmor) belegt und verfügen über guten Schallschutz.
Alle Wohnräume sind mit edlem Parkett in Eiche massiv, geölt ausgestattet. In der Küche und im Bad wurden großformatige Bodenfliesen (Feinsteinzeug) verlegt. Diese sind in anthrazit gehalten und bringen im Bad einen tollen Kontrast zu den weißen Wandfliesen und Sanitärobjekten. Das moderne, luxuriöse Badezimmer hat ein Dachflächenfenster und ist dadurch schön hell. Es ist mit Doppelwaschbecken sowie Badewanne und großer, bodenebener Dusche ausgestattet. Auch ein Waschmaschinenanschluss ist vorhanden der alternativ zur Aufstellmöglichkeit im Waschkeller genutzt werden kann.
Alle Räume werden einzeln regelbar mit Fußbodenheizung beheizt. Im Bad gibt es zusätzlich einen Handtuchtrockner mit Elektroanschluss. Die zentrale Wärmeerzeugung erfolgt mittels einer Gas-Brennwert-Anlage, die durch thermische Sonnenkollektoren unterstützt ist.
Die Wohnung ist mit sehr hochwertigen Holz-Alu-Fenstern und edlen, weißen Holztüren mit Edelstahlgarnituren ausgestattet. Die beiden Dachflächenfenster in Küche und Bad sind elektrisch bedienbar und haben ebenfalls elektr. Außenrollos. Ein Glaseinsatz in der Wohnzimmertüre sorgt für natürliches Licht in der Diele.
Selbstverständlich sind in allen Räumen ausreichend Steckdosen als auch Anschlussdosen zur Medienversorgung vorhanden.

Ein absolutes Highlight ist das Wohnzimmer mit der großen Dachgaube, die komplett bodentief verglast ist. Zwei große Doppeltüren öffnen zum über 10 m² großen, überdachten, herrlichen Südbalkon. Diese Dachgeschoss-Wohnung hat eine sehr attraktive Raumgestaltung mit Raumhöhen von bis zu gut 3 Metern und sichtbaren Dachbalken. Die Fenster-Türen in Schlaf- sowie Kinder- bzw. Arbeitszimmer öffnen jeweils mit Doppelflügel zum zweiten Balkon dieser wunderschönen Wohnung. Zudem sind auch bei diesen Zimmern die großen Fenster nach oben hin der Dachneigung angepasst, was für eine tolle Raumwirkung und einen herrlichen Lichteinfall sorgt. Praktisch ist der Abstellraum sowie die beiden Kriechspeicher, die viel zusätzlichen Stauraum bieten.

Lagebeschreibung

Leben im Süden Münchens zwischen der „Weltstadt mit Herz“ und den Alpen. Hier in Sauerlach stimmt die Infrastruktur und der Freizeitwert.
Mit dem Kfz erreicht man in ca. 30 Minuten die Münchner Innenstadt, etwa ebenso lange benötigt man in die Berge oder z. B. zum Starnberger See. Auch der Autobahnanschluss zur A 995 und A8 ist schnell erreicht und man hat über das nahe Autobahnkreuz München-Süd Zugang zu allen Richtungen.
Diese neuwertigen Architektenhäuser (Bezugsfertigkeit war 09/2019) liegen auf einem schönen großen Grundstück im westlichen Ortsgebiet von Sauerlach. In 11 – 15 Minuten (1100 m) erreicht man zu Fuß die S-Bahn oder man nimmt bequem den Bus der in einer Fahrzeit von ca. 4 Minuten den
Bahnhof erreicht.
Sauerlach bietet eine sehr gute Infrastruktur mit vielfältigen Einkaufsmöglichkeiten, Restaurants, Arztpraxen, Banken und Dienstleistern. Selbstverständlich gibt es mehrere Kindergärten und auch eine Grundschule ist am Ort. Weiterführende Schulen sind mit der S-Bahn problemlos in den Nachbarorten (z. B. Oberhaching, Taufkirchen oder Holzkirchen) erreichbar.

Sonstiges

Zur Wohnung gehört ein Außenstellplatz (Nr. 13 ) sowie ein Tiefgaragenstellplatz (Nr. 11). Die Tiefgarage bietet ausschließlich vollwertige, geräumige Stellplätze (keine Duplex). Bemerkenswert ist zudem der gute Schnitt der Tiefgarage, der einfaches Rangieren ermöglicht. Selbstverständlich erfolgt die Öffnung des Tiefgaragentors bequem mit Fernbedienung, die Einfahrthöhe beträgt 2 Meter.
Zur Wohnung gehört ein eigenes Kellerabteil (4,80 m²). Im KG gibt es einen Waschraum, in dem Sie an einem separaten Wasser- und Stromanschluss Ihre eigene Waschmaschine und Trockner (als Turm) aufstellen können.
Zur gemeinschaftlichen Nutzung gibt es einen großzügig dimensionierten Raum zur Einstellung von Kinderwägen und Fahrrädern.

Hinweis:
Die Bilder der Wohnung stammen aus 08.2019 kurz vor Bezugsfertigkeit.
Die Wohnung wird noch von den derzeitigen Mietern bewohnt und wird zum 1.8. frei.


Wir bitten Sie bei Ihrer Anfrage um vollständige Kontaktangaben (zumindest Anschrift und Telefonnummer), wenn möglich gerne auch eine kurze Beschreibung
Ihrer Situation.